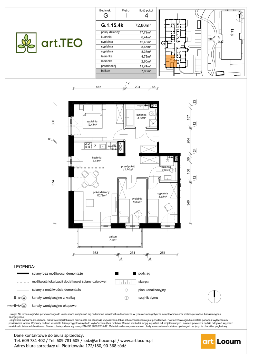
Mieszkanie G.1.15.4k
Rezerwacja
- Termin oddania:I kw. 2027 r.
- Pokoje:4
- Powierzchnia:72,83 m2
- Wystawa okna:południowy-zachód
- Balkon:7 m2
- Miejsce postojowe zewnętrzne w cenie 28 000 zł/szt.
- Miejsce parkingowe w garażu w cenie 38 000 lub 42 000 zł/szt. (jeśli dostępne to sprzedawane do mieszkań 3 i 4 pokojowych)
Prospekt II zadania inwestycyjnego art.TEO (budynek D)

