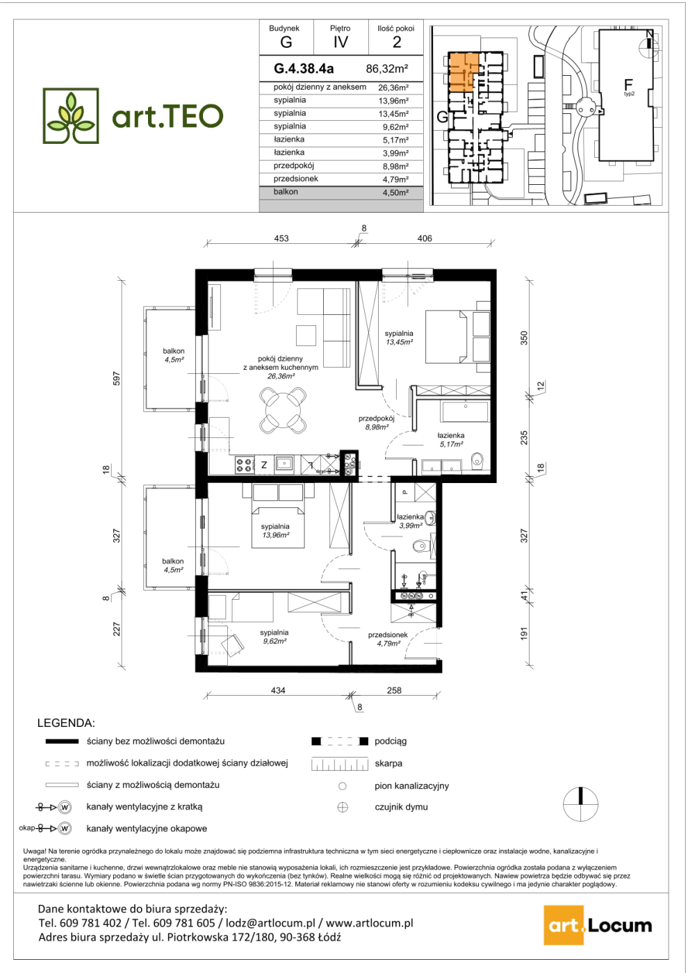
Mieszkanie G.4.38.4a
Dostępne
775 000,00 zł brutto (8% Vat)
Cena za m2: 8 978,00 zł
Cena nie zmieniła się od 2026-02-27 r.
- Termin oddania:I kw. 2027 r.
- Pokoje:4
- Powierzchnia:86,32 m2
- Wystawa okna:północny-zachód
- Balkon:4,5 m2
- Miejsce postojowe zewnętrzne w cenie 28 000 zł/szt.
- Miejsce parkingowe w garażu w cenie 38 000 lub 42 000 zł/szt. (jeśli dostępne to sprzedawane do mieszkań 3 i 4 pokojowych)
Prospekt II zadania inwestycyjnego art.TEO (budynek D)

